Einfamilienhaus in Bückeburg

Mit Doppelcarport und Photovoltaik
HausbauEinfamilienhaus in Bückeburg

Zahlen

Standort:Bückeburg
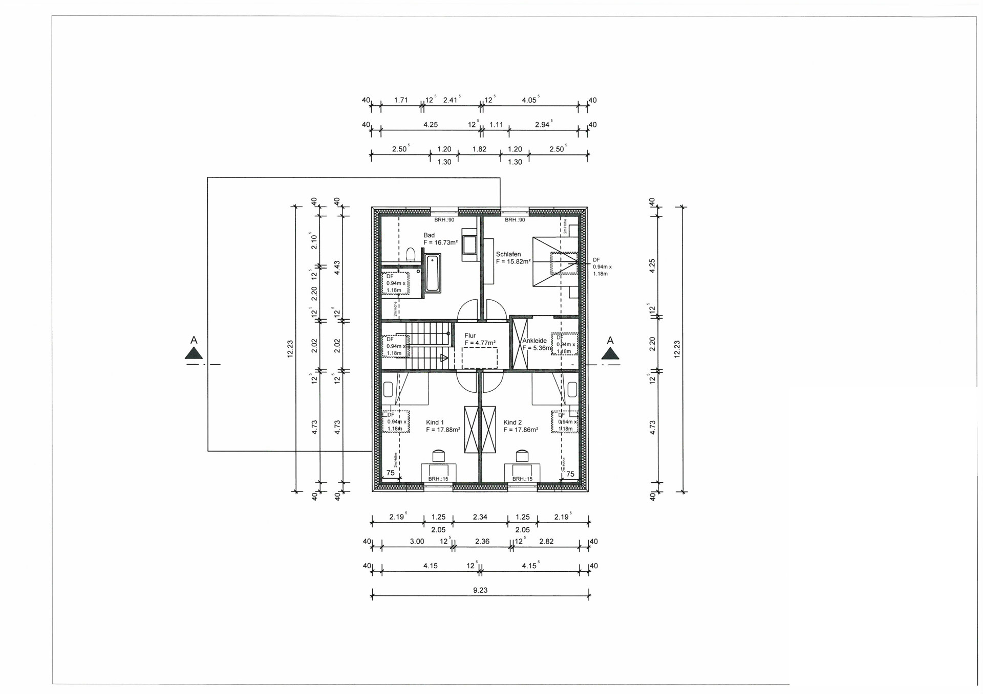
Wohnfläche Erdgeschoss:88 m²
Wohnfläche Obergeschoss:78m²

Über das Bauvorhaben

Zellulosedämmung in Wänden und Dach

Fassade: sib. Lärche – waagerechte Stulpschalung von mocopinus, feingesägt, silbergrau vorbehandelt

Ziegel: Tonziegel, Meyer Holsen, piano Farbton: Engobe tiefschwarz- anthrazit

Ausstattung

  • Fußbodenheizung
  • Photovoltaik
  • Dreifach Schutzverglasung
  • Spitzboden

Gefällt Ihnen unsere Arbeit

Schreiben Sie uns. Wir beraten Sie gern.

Bitte geben Sie Ihren Namen und eine Telefonnummer an.

Wir rufen zurück. Vielen Dank.

    Wir verarbeiten Ihre persönlichen Daten zur Bearbeitung ihrer Anfrage. Detaillierte Informationen zur Verwendung und zum Widerspruch finden Sie in der Datenschutzerklärung.